skip to main content
$145,000

1012 Penn Ave, Wilkinsburg, PA 15221

Active #1749579
New4/21
WilkinsburgAllegheny County
Office, Retail, Warehouse0.07 Acres
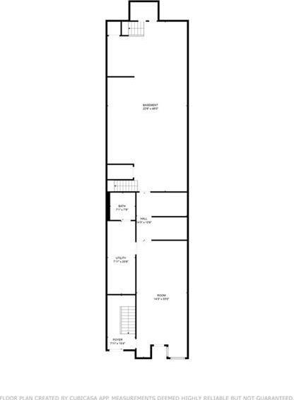
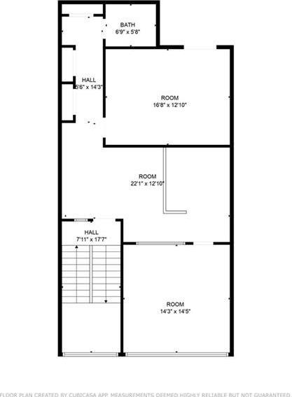
Versatile mixed-use property in the heart of Wilkinsburg on Penn Ave, perfect for a variety of business needs. Formerly a locksmith shop, the building includes a storefront with large display windows, a spacious industrial garage with two-phase electrical service, and access to a full basement"”ideal for storage or workshop use. Upstairs, a fully renovated office suite features a bright reception area, conference room, private office, and modern bathroom. Clean finishes and great natural light make it a comfortable office workspace separate from the storefront/warehouse first floor. A loft above the warehouse adds extra storage for materials or inventory. Zoned for mixed use, this property offers excellent potential for retail, light industrial, or service-based businesses. Solid structure, flexible layout, and key upgrades make it an ideal investment opportunity. Don't miss this Mixed-use gem!
Presented ByIntegrity Plus Realty
General Information
For Sale Building
Lot Size 0.07
Taxes $600
Zoning LNC
Exterior Features
Access City
Construction Brick
Utilities
Utilities Available Electricity, Gas, Sewer, Water

Map

Drive Time Estimator

Add locations to calculate your drive time to this property.

Mortgage Estimator

principal + interest
$0
$
price
% down
$
loan
%
years
+
taxes
$50
$
taxes/yr
+
insurance
$0
$
ins./yr
=
monthly cost
$0
Total Monthly Cost

For more details, use our mortgage comparison and amortization tool.

This is an estimate which can be affected by your lender's rates, PMI requirements and other factors. For the most accurate information, contact a mortgage representative.

Listing courtesy of COMPASS PENNSYLVANIA, LLC

Information Herein is Deemed Reliable but Not Guaranteed

Get In Touch About This Property
Presented ByIntegrity Plus Realty

I'd like to:

Email This Property

Fill out the form below to email this property to a friend!

Login
Register
Log In To Use This Feature

Log in to access your saved properties, easily request more information, get customized mortgage calculations and more! Or register a new account.

Register to Use This Feature

Creating an account allows you to save properties, easily request more information, get customized mortgage calculations and more!

Forgot Password

Enter your email address in the box below and click "Reset Password" to send an email with instructions to reset your password.