skip to main content
$439,000

113 Merion Court, Hempfield Twp, PA 15601

Active #1747651
New4/9
Hempfield TwpHempfield Area School DistrictWestmoreland County
Single Family4 Beds3 Baths0.07 Acres
Welcome to 113 Merion Court in Greensburg! This fully renovated 4-bedroom, 3.5-bath home offers a great mix of space and flexibility. The private backyard has a peaceful view with a walking path"”perfect for relaxing or having people over. Inside, the home is bright with tons of natural light throughout. You'll find two kitchens and two laundry rooms, giving you plenty of options for how to use the space. Other updates include new appliances, a freshly painted garage floor, and a clean, move-in ready feel. Tucked away on a quiet cul-de-sac with easy, low-maintenance living thanks to the HOA"”this one is ready for its next owner!
Listed ByIntegrity Plus Realty(724) 420-5676
General Information
Lot Size .07
Taxes $3,946
Exterior Features
Parking Integral Garage, 2
Roof Asphalt
Style Ranch or 1 Level
Subdivision Fairway Twnhms/Cherry Crk
Interior Features
Basement Walk Out, fin
Fireplaces 1
Floors Ceramic Tile, Hard Wood
Room Count 10
Utilities
Cooling Central
Sewage Public
Water Public

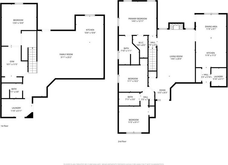
Rooms

Main Level

  • Living Room14x20

  • Dining Room12x9

  • Kitchen12x11

  • Master Bed15x12

  • Bedroom11x10

  • Bedroom11x10

Lower Level

  • Bedroom14x16

  • Kitchen11x10

  • Laundry12x6

  • Family Room31x25

Room sizes and locations are based on available info. Bathrooms and additional rooms may not be shown. Contact us for more detail.

Map

Drive Time Estimator

Add locations to calculate your drive time to this property.

Mortgage Estimator

principal + interest
$0
$
price
% down
$
loan
%
years
+
taxes
$329
$
taxes/yr
+
insurance
$0
$
ins./yr
=
monthly cost
$0
Total Monthly Cost

For more details, use our mortgage comparison and amortization tool.

This is an estimate which can be affected by your lender's rates, PMI requirements and other factors. For the most accurate information, contact a mortgage representative.

Information Herein is Deemed Reliable but Not Guaranteed

Make This Your Home!
Listed ByIntegrity Plus Realty(724) 420-5676

I'd like to:

Email This Property

Fill out the form below to email this property to a friend!

Login
Register
Log In To Use This Feature

Log in to access your saved properties, easily request more information, get customized mortgage calculations and more! Or register a new account.

Register to Use This Feature

Creating an account allows you to save properties, easily request more information, get customized mortgage calculations and more!

Forgot Password

Enter your email address in the box below and click "Reset Password" to send an email with instructions to reset your password.