skip to main content
$2,500

1412 Venetia Rd Unit #2, Nottingham, PA 15330

Active #1732681
New12/4
NottinghamWashington County
Manufacturing, Office, Retail, Warehouse, Wholesale1 Acres
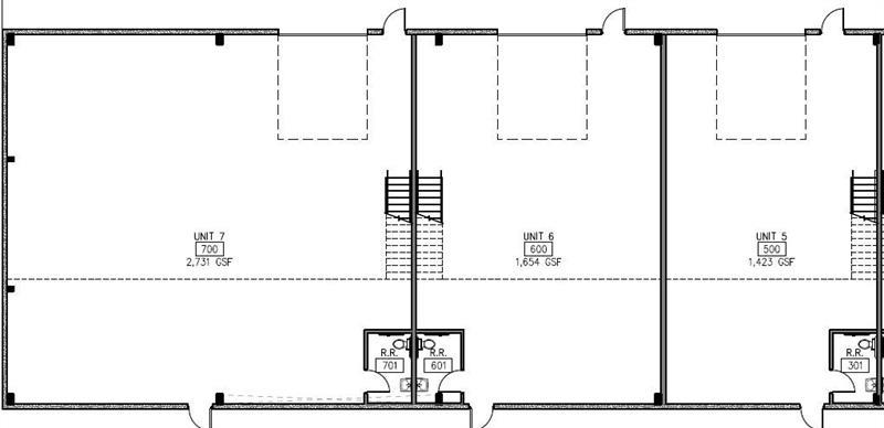
Welcome to "Venetia Commons" Fresh New Construction Ground-Breaking on our 7 Unit FOR LEASE Warehouse Property right on Venetia Rd in Nottingham Twp! Many Commercial, Industrial and Manufacturing Uses Available with the M1- Light Industrial Zoning! 14' garage Door, 16' soaring to 22' ceiling height Allowing for an optional 2nd floor Mezzanine, Separated utilities, each unit has it's own restroom and parking. A few different sizes to choose from 1300 - 2700 Sq ft.
Presented ByIntegrity Plus Realty
General Information
For Lease Building
Lot Size 1 acre
Taxes $100
Zoning M1
Utilities
Utilities Available Electricity, Gas, Sewer, Water

Map

Drive Time Estimator

Add locations to calculate your drive time to this property.

Mortgage Estimator

principal + interest
$0
$
price
% down
$
loan
%
years
+
taxes
$8
$
taxes/yr
+
insurance
$0
$
ins./yr
=
monthly cost
$0
Total Monthly Cost

For more details, use our mortgage comparison and amortization tool.

This is an estimate which can be affected by your lender's rates, PMI requirements and other factors. For the most accurate information, contact a mortgage representative.

Listing courtesy of COSTA REAL ESTATE LLC

Information Herein is Deemed Reliable but Not Guaranteed

Get In Touch About This Property
Presented ByIntegrity Plus Realty

I'd like to:

Email This Property

Fill out the form below to email this property to a friend!

Login
Register
Log In To Use This Feature

Log in to access your saved properties, easily request more information, get customized mortgage calculations and more! Or register a new account.

Register to Use This Feature

Creating an account allows you to save properties, easily request more information, get customized mortgage calculations and more!

Forgot Password

Enter your email address in the box below and click "Reset Password" to send an email with instructions to reset your password.