skip to main content
$0

23 W Pike Street, Houston, PA 15342

Active #1746105
New3/31
HoustonWashington County
Office0.95 Acres
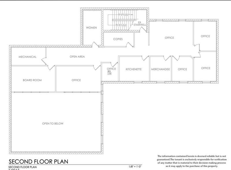
Now available for lease, this move-in ready second-level walk-up office suite offers approximately 2,650 SF +/- of adaptable space suited for a variety of professional uses. The layout features six private offices, a spacious board room, and a convenient kitchenette, providing a functional environment for administrative operations, professional services, or a co-working concept. The property offers abundant on-site parking, ensuring convenience for employees and visitors. Positioned along W Pike Street with traffic counts of 9,649 vehicles per day, the building benefits from strong visibility and consistent exposure. Just minutes from Interstate 79, the location provides excellent regional accessibility while maintaining a presence in the active Houston, PA corridor. This is a Full Service lease.
Presented ByIntegrity Plus Realty
General Information
For Lease Building
Lot Size 100X163 & 152X1263
Taxes $11,797
Zoning CC
Exterior Features
Parking 75
Traffic Count 9,649
Interior Features
Office Sqft 2,650

Map

Drive Time Estimator

Add locations to calculate your drive time to this property.

Mortgage Estimator

principal + interest
$0
$
price
% down
$
loan
%
years
+
taxes
$983
$
taxes/yr
+
insurance
$0
$
ins./yr
=
monthly cost
$0
Total Monthly Cost

For more details, use our mortgage comparison and amortization tool.

This is an estimate which can be affected by your lender's rates, PMI requirements and other factors. For the most accurate information, contact a mortgage representative.

Listing courtesy of HOWARD HANNA REAL ESTATE SERVICES

Information Herein is Deemed Reliable but Not Guaranteed

Get In Touch About This Property
Presented ByIntegrity Plus Realty

I'd like to:

Email This Property

Fill out the form below to email this property to a friend!

Login
Register
Log In To Use This Feature

Log in to access your saved properties, easily request more information, get customized mortgage calculations and more! Or register a new account.

Register to Use This Feature

Creating an account allows you to save properties, easily request more information, get customized mortgage calculations and more!

Forgot Password

Enter your email address in the box below and click "Reset Password" to send an email with instructions to reset your password.