skip to main content
$575,000

544 Green Tree Road, Kittanning Twp, PA 16201

Active #1743382
New3/11
Kittanning TwpArmstrong County
Office1.99 Acres
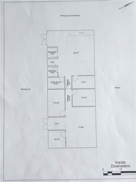
Take a look at this Professionally Built Office Building. It was designed from ground up to project adaptability from the structure to the finishes-reflects a commitment to Engineering excellence. Trussed, Engineered roof and floor systems ensure long-term durability, load capacity, and safety. Roof and floor precision-designed trusses for office use. Because the structural system carries all the load, every interior wall is non-load-bearing. Walls can be added, removed, or reconfigured at any time. Teams can redesign entire floors without structural constraints. The building can evolve with the business-open-plan today, private offices tomorrow. The roof is built using Engineered Trusses, ensuring structural reliability, long clear spans, resistance to snow, wind, and long-term setting. Like the floor system, the roof structure does not depend on interior walls for support. The lower level is built with solid concrete block walls, providing exceptional strength, security, and insulation. A heated concrete floor system ensures consistent warmth and energy-efficient comfort throughout the lower level. This level forms a stable, durable base for the entire building. The separate Pre-Engineered steel building (1785 sq ft) is a durable, highly functional building for versatility, efficiency, and long-term reliability. It pairs industrial-grade construction with practical features that make it ideal for storage, workshop use, light commercial operations, or mixed-use support space.
Presented ByIntegrity Plus Realty
General Information
For Sale Building, Land
Lot Size 237x184x196x264x122x
Taxes $8,787
Zoning N/A
Interior Features
Office Sqft 4,320
Warehouse Sqft 1,785

Map

Drive Time Estimator

Add locations to calculate your drive time to this property.

Mortgage Estimator

principal + interest
$0
$
price
% down
$
loan
%
years
+
taxes
$732
$
taxes/yr
+
insurance
$0
$
ins./yr
=
monthly cost
$0
Total Monthly Cost

For more details, use our mortgage comparison and amortization tool.

This is an estimate which can be affected by your lender's rates, PMI requirements and other factors. For the most accurate information, contact a mortgage representative.

Listing courtesy of NEXTHOME DYNAMIC

Information Herein is Deemed Reliable but Not Guaranteed

Get In Touch About This Property
Presented ByIntegrity Plus Realty

I'd like to:

Email This Property

Fill out the form below to email this property to a friend!

Login
Register
Log In To Use This Feature

Log in to access your saved properties, easily request more information, get customized mortgage calculations and more! Or register a new account.

Register to Use This Feature

Creating an account allows you to save properties, easily request more information, get customized mortgage calculations and more!

Forgot Password

Enter your email address in the box below and click "Reset Password" to send an email with instructions to reset your password.