skip to main content
$4,733

5804 # 101 Bryant Street, Pittsburgh, PA 15206

Active #1737528
New1/19
Highland ParkAllegheny County
Office, Restaurant, Retail0.04 Acres
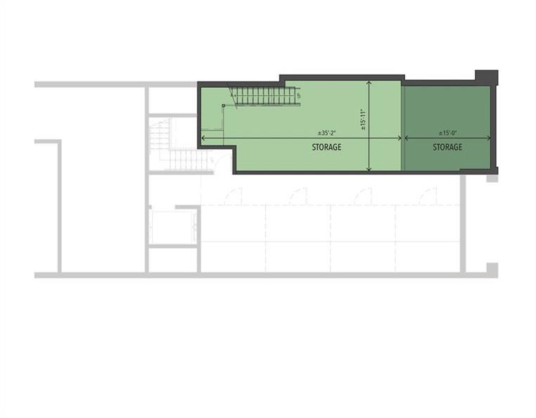
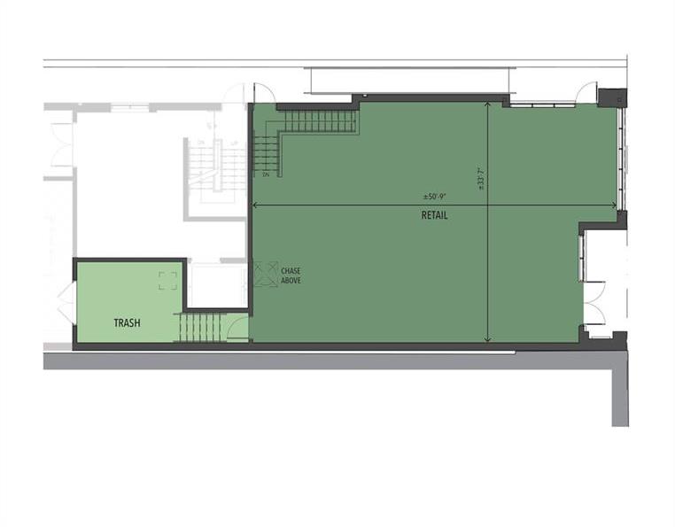
Prime Commercial Opportunity , Restaurant • Retail • Office Highland Regency ,5804 Bryant Street , Pittsburgh, PA Position your business in the heart of one of Pittsburgh's most exciting and community-driven neighborhoods. This new construction, 2,278 SF commercial space offers exceptional flexibility for restaurant, retail, office, or service users seeking visibility, walkability, and long-term neighborhood demand. The property features an open floor plan that balances professionalism with contemporary design, allowing for a wide range of configurations and occupancy densities. Tenants may choose from turnkey solutions or explore build-to-suit options to create a space tailored to their brand and operational needs. Located in the Bryant Street commercial district, the building enjoys strong street-level presence among popular local restaurants, service providers, and long-standing neighborhood businesses. This is a district driven by repeat, community-based demand, not destination retail"”ideal for businesses seeking consistent foot traffic and neighborhood loyalty. The historic charm of Highland Park is reflected in the area's preserved architecture and proximity to lush parkland, creating a timeless and welcoming setting for customers and clients alike. The location also provides quick access to I-376 and seamless connectivity to Pittsburgh's East End neighborhoods. Highlights: 2,278 SF new construction commercial space Restaurant, retail, office, or service use Open floor plan with turnkey or build-to-suit options Strong street visibility and walkable location Located in the Bryant Street business corridor Easy access to I-376 and East End neighborhoods Community-oriented retail environment with established demand This is a rare opportunity to establish your business in a thriving, walkable commercial corridor within one of Pittsburgh's most desirable neighborhoods.
Presented ByIntegrity Plus Realty
General Information
For Lease Building
Lot Size 4893
Taxes $313
Zoning LNC
Exterior Features
Access City, Private
Construction Brick, Steel
Interior Features
Office Sqft 2,278
Utilities
Utilities Available Electricity, Gas, Other, Sewer

Map

Drive Time Estimator

Add locations to calculate your drive time to this property.

Mortgage Estimator

principal + interest
$0
$
price
% down
$
loan
%
years
+
taxes
$26
$
taxes/yr
+
insurance
$0
$
ins./yr
=
monthly cost
$0
Total Monthly Cost

For more details, use our mortgage comparison and amortization tool.

This is an estimate which can be affected by your lender's rates, PMI requirements and other factors. For the most accurate information, contact a mortgage representative.

Listing courtesy of RE/MAX SELECT REALTY

Information Herein is Deemed Reliable but Not Guaranteed

Get In Touch About This Property
Presented ByIntegrity Plus Realty

I'd like to:

Email This Property

Fill out the form below to email this property to a friend!

Login
Register
Log In To Use This Feature

Log in to access your saved properties, easily request more information, get customized mortgage calculations and more! Or register a new account.

Register to Use This Feature

Creating an account allows you to save properties, easily request more information, get customized mortgage calculations and more!

Forgot Password

Enter your email address in the box below and click "Reset Password" to send an email with instructions to reset your password.